Lubisz ciasteczka? My też!

Chętnie dzielimy się nimi, gdy odwiedzają nas bliscy. Dlatego używamy na naszej stronie plików „cookie” (tzw. "ciasteczek"). Dzięki nim możesz jeszcze łatwiej i wygodniej korzysta

 z naszej oferty.

Aby zapewnić

 jak najlepsze wrażenia, korzystamy z technologii, takich jak pliki cookie, do przechowywania i/lub uzyskiwania dostępu do informacji o urządzeniu. Zgoda na te technologie pozwoli nam przetwarza

 dane, takie jak zachowanie podczas przeglądania lub unikalne identyfikatory na tej stronie. Brak wyrażenia zgody lub wycofanie zgody może niekorzystnie wpłynąć na niektóre cechy i funkcje.

  • Funkcjonalne

Przechowywanie lub dostęp do danych technicznych jest ściśle konieczny do uzasadnionego celu umożliwienia korzystania z konkretnej usługi wyraźnie żądanej przez subskrybenta lub użytkownika, lub wyłącznie w celu przeprowadzenia transmisji komunikatu przez sieć łączności elektronicznej.

  • Statystyka

Przechowywanie techniczne lub dostęp, który jest używany wyłącznie do celów statystycznych.

  • Marketing

Przechowywanie lub dostęp techniczny jest wymagany do tworzenia profili użytkowników w celu wysyłania reklam lub śledzenia użytkownika na stronie internetowej lub na kilku stronach internetowych w podobnych celach marketingowych.


Funkcjonalne (niezbędne)
Analityczne
Marketingowe

Mieszkanie na sprzedaż Bielsko-Biała

4 pokoje
53.86 m²
10 657,26 zł/m2
2 piętro
FLV-MS-205
Oblicz ratę kredytu

574 000 zł

Mieszkanie na sprzedaż
Bez prowizji

Szczegóły oferty

Symbol oferty FLV-MS-205
Powierzchnia 53,86 m²
Powierzchnia użytkowa [m2] 53,86 m²
Liczba pokoi 4
Rodzaj budynku apartamentowiec
Technologia budowlana pustak ceramiczny
Standard
Piętro 2
Liczba pięter w budynku 4
Stan lokalu bardzo dobry
Okna PCV 3 szyby, ciepły montaż
Rok budowy 2028
Plac zabaw tak
Winda tak
Usytuowanie narożne

Opis nieruchomości

Mieszkanie 4-pokojowe | 53,86 m² | centrum Bielska-Białej

0% PROWIZJI – brak prowizji od Kupującego

Na sprzedaż funkcjonalne, 4-pokojowe mieszkanie o powierzchni 53,86 m², zlokalizowane na 2 piętrze nowoczesnej inwestycji przy ul. Grażyńskiego w Bielsku-Białej. Lokal posiada ekspozycję południowo-zachodnią, dzięki czemu wnętrza są doskonale doświetlone przez większą część dnia.

To propozycja idealna zarówno dla rodziny, jak i dla inwestora szukającego mieszkania pod wynajem w ścisłym centrum miasta.

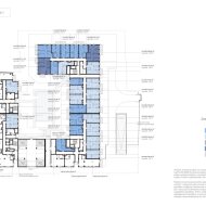
Układ pomieszczeń

Mieszkanie zostało zaprojektowane w bardzo funkcjonalny sposób:

  • hol – 12,50 m²

  • salon z aneksem kuchennym – 12,53 m²

  • sypialnia – 9,55 m²

  • sypialnia – 6,72 m²

  • sypialnia / gabinet – 8,05 m²

  • łazienka – 4,51 m²

Łączna powierzchnia: 53,86 m²

Dużym atutem mieszkania jest możliwość wydzielenia trzech niezależnych sypialni, co czyni je bardzo atrakcyjnym produktem inwestycyjnym pod wynajem.


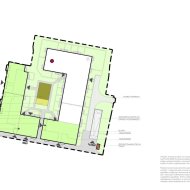
Lokalizacja – ścisłe centrum miasta

Inwestycja znajduje się w centralnej części Bielska-Białej, co zapewnia wygodny dostęp do pełnej infrastruktury miejskiej.

W najbliższej okolicy znajdują się m.in.:

  • centrum handlowe i liczne sklepy

  • restauracje i kawiarnie

  • szkoły i przedszkola

  • tereny rekreacyjne

  • przystanki komunikacji miejskiej

Dzięki temu większość codziennych spraw można załatwić pieszo, bez konieczności korzystania z samochodu. Lokalizacja gwarantuje również bardzo dobrą komunikację z pozostałymi częściami miasta.


Atuty inwestycji

Nowoczesny kompleks mieszkaniowy oferuje mieszkańcom wiele udogodnień, m.in.:

  • eleganckie części wspólne

  • nowoczesne windy

  • miejsca parkingowe w hali garażowej

  • komórki lokatorskie

  • stojaki rowerowe

  • starannie zagospodarowaną przestrzeń wokół budynku

Architektura inwestycji łączy nowoczesny styl z funkcjonalnością, zapewniając komfort mieszkania w centrum miasta.

Kalkulatory

Kalkulator kredytowy

Wysokość raty

PLN
%

Kalkulator kosztów

Taksa notarialna
(opłata notarialna)

Wniosek o wpis do WKW

VAT od prowizji
agencji nieruchomości

Vat od taksy notarialnej
(opłaty notarialnej)

Prowizja agencji nieruchomości

Wypisy aktu notarialnego

Razem

Uwaga: mogą wystąpić dodatkowe opłaty za założenie księgi wieczystej oraz ustanowienie hipoteki.

PLN
PLN
PLN
PLN
PLN
%
PLN

Podobne oferty

Mieszkanie na sprzedaż

Bielsko-Biała

61 m2 11 134,94 zł/m2

Mieszkanie na sprzedaż

Bielsko-Biała

2 pokoje 34 m2 11 906,84 zł/m2
Nowa oferta

Mieszkanie na sprzedaż

Bielsko-Biała, Stare Bielsko

3 pokoje 50 m2 10 190,49 zł/m2
Nowa oferta
Nowa oferta
Video

Mieszkanie na sprzedaż

Bielsko-Biała

2 pokoje 50 m2 10 521,88 zł/m2
Nowa oferta
Video

Agent

Proszę wprowadzić poprawne imię i nazwisko
Proszę wprowadzić poprawny numer telefonu
Proszę wprowadzić poprawny adres e-mail
Proszę zaznaczyć wymagane zgody
Rozwiąż równanie:
25 2
Niepoprawny wynik